Copyright 2014 Brand Exponents All Rights Reserved
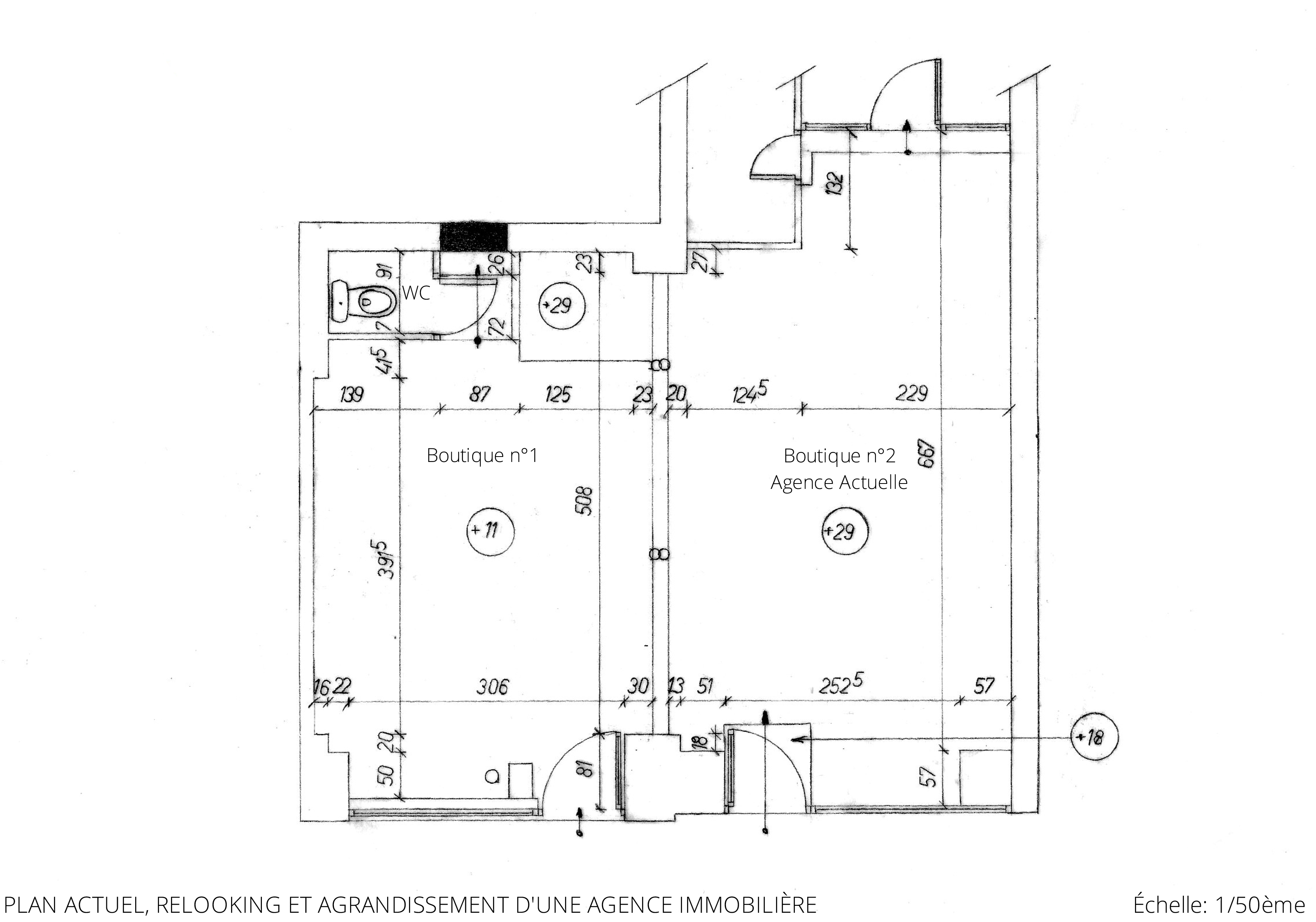
Ouverture d’un mur entre une boutique et l’actuelle agence afin de permettre l’agrandissement et un relooking effectué par l’agence Avéo Neuilly Sur Seine.